Beschreibung
Tolle Lage - Balkon - separates WC mit eigene Waschmaschine und Tumbler - Parkettboden in den Zimmern - offene Küche - grosszügiges Wohnzimmer - ohne Lift - nächste Tramstation Heiligholz - Einkaufsmöglichkeiten in wenigen Gehminuten im Einkaufszentrum Gartenstadt
Standort
Details
Objektart
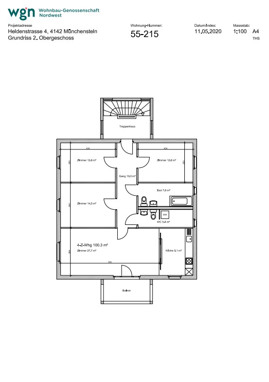
Wohnung
Wohnfläche
100 m2
Zimmer
4
Etage
2
Mietpreis pro Monat
2’420 CHF
Mietpreis (exkl. NK)
2’040 CHF
Nebenkosten
380 CHF
Verfügbarkeit ab
16.05.2026
ÖV-Haltestelle
250 m
Einkaufsmöglichkeit
700 m
Balkon/Sitzplatz
Es ist leider ein Fehler aufgetreten, bitte melden sie sich direkt per Mail an info@wgn.ch
Vielen Dank für Ihre Kontaktaufnahme, wir werden uns sobald wie möglich bei Ihnen melden.
Bitte füllen Sie alle erforderlichen Felder aus.